Zurück zum Bautagebuch
Das Grundstück


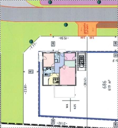
Grundriss vom Grundstück

Grundstück mit Haus

Blick auf einen Teil des Baulandes

Baustraße kurz vor der Fertigstellung

Grundstück mit Blick nach Westen

Grundstück voll erschlossen und für die Bodenplatte bereit